产品结构特征
电动楔式闸阀是一种做直线运动的阀门,它与Z型多回转执行机构相配,有开关型和智能型。此阀门操作简单是一种常见的启闭阀,它利用闸板的上下工作来接通和关断管道中的流体介质。广泛用于电力、冶金、石油、化工、造纸、污水处理等行业。
其主要结构特点有
1、产品结构合理、密封可靠、性能优良、造型美观。
2、密封面堆焊Co基硬质合金,耐磨、耐蚀、抗擦伤性能好、使用寿命长。
3、阀杆经调质及表面氮化处理,有良好的抗腐蚀性及抗擦伤性。
4、阀门设有倒密封结构,密封可靠。
5、零件材质及法兰、对焊端尺寸可根据实际工况或用户要求合理选配,满足各种工程需要。
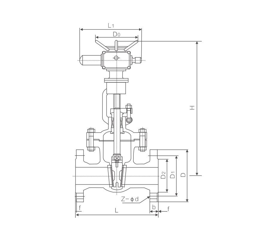
主要连接尺寸 PN 16
|
DN(mm) |
L |
D |
D1 |
D2 |
b |
f |
Z-φd |
H |
电动装置 |
WT (Kg) |
|
40 |
200 |
145 |
110 |
85 |
16 |
3 |
4-φ18 |
595 |
DZW15 |
53 |
|
50 |
250 |
160 |
125 |
100 |
16 |
3 |
4-φ18 |
653 |
DZW20 |
59 |
|
65 |
265 |
180 |
145 |
120 |
18 |
3 |
4-φ18 |
665 |
DZW20 |
62 |
|
80 |
280 |
195 |
160 |
135 |
20 |
3 |
8-φ18 |
725 |
DZW20 |
74 |
|
100 |
300 |
215 |
180 |
155 |
20 |
3 |
8-φ18 |
787 |
DZW20 |
92 |
|
125 |
325 |
245 |
210 |
185 |
22 |
3 |
8-φ18 |
787 |
DZW20 |
154 |
|
150 |
350 |
280 |
240 |
210 |
24 |
3 |
8-φ23 |
902 |
DZW30 |
161 |
|
200 |
400 |
335 |
295 |
265 |
26 |
3 |
12-φ23 |
1105 |
DZW30 |
219 |
|
250 |
450 |
405 |
355 |
320 |
30 |
3 |
12-φ25 |
1343 |
DZW45 |
376 |
|
300 |
500 |
460 |
410 |
375 |
30 |
4 |
12-φ25 |
1516 |
DZW60 |
484 |
|
350 |
550 |
520 |
470 |
435 |
34 |
4 |
16-φ25 |
1678 |
DZW60 |
695 |
|
400 |
600 |
580 |
525 |
485 |
36 |
4 |
16-φ30 |
1849 |
DZW90 |
977 |
|
450 |
650 |
640 |
585 |
545 |
40 |
4 |
20-φ30 |
1937 |
DZW90 |
1033 |
|
500 |
700 |
705 |
650 |
608 |
44 |
4 |
20-φ34 |
2234 |
DZW120 |
1087 |
|
600 |
800 |
840 |
770 |
718 |
48 |
5 |
20-φ36 |
2432 |
DZW180 |
1357 |
|
700 |
900 |
910 |
840 |
788 |
50 |
5 |
24-φ36 |
2489 |
DZW250 |
1481 |
|
800 |
1000 |
1020 |
950 |
898 |
52 |
5 |
24-φ41 |
2643 |
DZW350 |
1845 |
|
900 |
1100 |
1120 |
1050 |
998 |
54 |
5 |
28-φ41 |
3509 |
DZW350 |
- |
|
1000 |
1200 |
1255 |
1170 |
1110 |
56 |
5 |
28-φ42 |
3873 |
DZW350 |
- |
|
1200 |
1300 |
1485 |
1390 |
1325 |
58 |
5 |
32-φ54 |
4229 |
DZW350 |
- |